Проект Афрейм А-4

Проект a4
Этажность
С мансардой
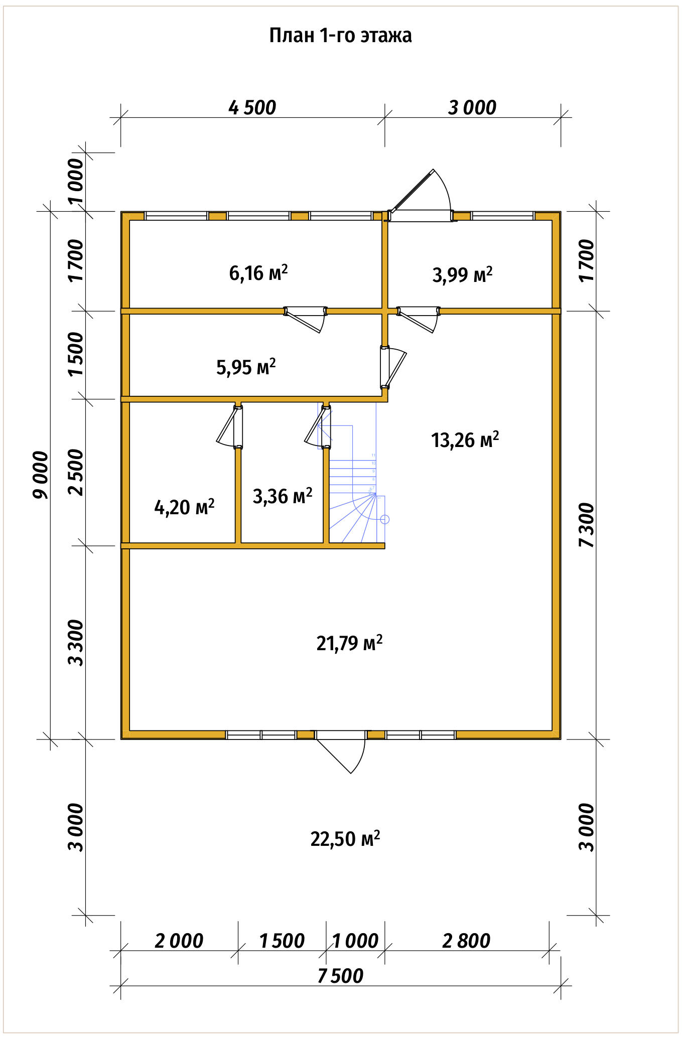
Площадь
90 м²
Размеры
8х9
Артикул
a4
Стоимость
от 2 970 000 ₽
Доступно:
  • Ипотека от 3%
  • Маткапитал
  • Рассрочка
  • Без предоплаты
Все способы оплаты →

Хотите внести изменения в проект?

Перепланировка, изменение площади, материалов — рассчитаем за один день

Входит в стоимость

Коробка и силовая часть

Основание, лаги, сруб и основные несущие элементы собраны в одном блоке, чтобы сразу видеть конструктивную базу проекта.

Этап 01

Основание дома

Несущая база, лаги пола и подготовка нижнего контура под монтаж коробки.

  • Обвязка основания Двойная, из нестроганого бруса 150×150 мм и бруса 100×150 мм на ребро естественной влажности.
  • Лаги пола 1-го этажа Доска 50×200 мм с шагом 590 мм, крепление на опору бруса.
  • Черновой пол Доска 20×100 мм естественной влажности.
  • Антисептирование Нижняя обвязка, черновые полы и лаги пропитываются антисептиком.
Этап 02

Сруб первого этажа

Наружные стены, перегородки и сборка тёплого контура из профилированного бруса.

  • Внешние стены Профилированный брус 140×140 мм естественной влажности с компенсационными пропилами, льноджут между венцами.
  • Перегородки Профилированный брус 90×140 мм, хвойные породы, с двух сторон прямой.
  • Сборка сруба На деревянные берёзовые нагели для предотвращения горизонтального смещения.
  • Угловые соединения Тёплый угол для жёсткости конструкции и сохранения тепла.
  • Высота сруба От лаг пола до потолочных балок 2,6 м (±5 см), 19 рядов бруса.
Этап 02.1

Второй этаж

Мансардный этаж из каркаса.

  • Конструкция Каркасно-щитовая конструкция.
Входит в стоимость

Кровля и проёмы

Во втором блоке собраны решения по крыше и стандартная схема подготовки оконных и дверных проёмов.

Этап 03

Кровля

Стропильная система, мембраны, обрешётка и базовое временное покрытие в составе проекта.

  • Крыша По проекту: двухскатная, ломаная или асимметричная, высота конька 1,7–3 м.
  • Стропила Доска 40×150 мм, шаг 590 мм.
  • Ветро-влагозащита Мембрана «Ондутис А-120 Смарт».
  • Контробрешётка Брусок 40×50 мм.
  • Обрешётка Доска 20×100 мм.
  • Фронтоны Мембрана «Ондутис А-100 Смарт», контррейка, имитация бруса 17×140 мм камерной сушки, вентиляционные решётки и дверь 0,7×0,9 м.
  • Покрытие Рубероид в базе, опционально металлочерепица, ондулин или мягкая кровля.
Этап 04

Окна и двери

Проёмы подготавливаются в базовой схеме, без установки готовых оконных и дверных блоков.

  • Окна Не устанавливаются, выполняется два ряда перевязки из профилированного бруса.
  • Межкомнатные двери Не устанавливаются, выполняется три ряда перевязки из бруса.
  • Входная дверь Не устанавливается, выполняется три ряда перевязки из бруса.
Входит в стоимость

Доставка и сборка

Отдельный блок для логистики и монтажа помогает быстро понять, что уже заложено в базовую цену проекта.

Этап 05

Доставка и сборка дома

Материалы, доставка в базовом радиусе и сборочные работы на участке уже включены в проект.

  • Доставка Бесплатно в радиусе 500 км от базы, далее 140 ₽/км за машину по предварительному онлайн-расчёту.
  • Сборка Материалы и работы на участке входят в стоимость проекта.
Рассчитывается отдельно

Опции и допрасчёт

Здесь собраны позиции, которые подбираются под участок, бюджет и желаемую финишную отделку.

Отдельный расчёт

Фундамент

Тип основания подбирается по геологии участка и схеме нагрузки, поэтому считается отдельно.

  • Свайно-винтовой фундамент 5 200 ₽ за 1 сваю
  • Забивной ЖБ фундамент 5 500 ₽ за 1 сваю
  • Ленточный фундамент 19 000 ₽ за 1 м³

Точная стоимость зависит от геологии, перепада участка и выбранной схемы основания.

Отдельный расчёт

Кровельные материалы

Финишное покрытие выбирается отдельно и позволяет гибко настроить внешний вид и бюджет дома.

  • Ондулин от 350 ₽ за 1 м²
  • Профлист от 450 ₽ за 1 м²
  • Металлочерепица от 550 ₽ за 1 м²
  • Мягкая кровля от 800 ₽ за 1 м²

Стоимость зависит от площади, конфигурации крыши и выбранного узла монтажа.

Похожие проекты

Проект a1

462 000 ₽

Площадь 14 м²
Размер 4х4
Этажи 1 этаж
Подробнее

Проект a2

627 000 ₽

Площадь 19 м²
Размер 5х5
Этажи Мансарда
Подробнее

Проект a3

1 056 000 ₽

Площадь 32 м²
Размер 6х6
Этажи Мансарда
Подробнее

Проект a5

3 069 000 ₽

Площадь 93 м²
Размер 8х10
Этажи Мансарда
Подробнее

Проект a6

1 914 000 ₽

Площадь 58 м²
Размер 6х8
Этажи Мансарда
Подробнее

Построенные дома

Отзывы

Отзыв
Отзыв
Новый отзыв заказчика
Новый отзыв заказчика
Отзыв Заказчика Rutube
Отзыв Заказчика Rutube
Отзыв заказчика
Отзыв заказчика

Построенные объекты на карте

Посмотрите, где мы уже построили дома и бани. Нажмите на маркер для подробностей.

Остались вопросы?