Проект 6х6 метров, площадью 55,3 м2

Проект П092
Проект П092
Проект П092
Проект П092
Проект П092
Проект П092

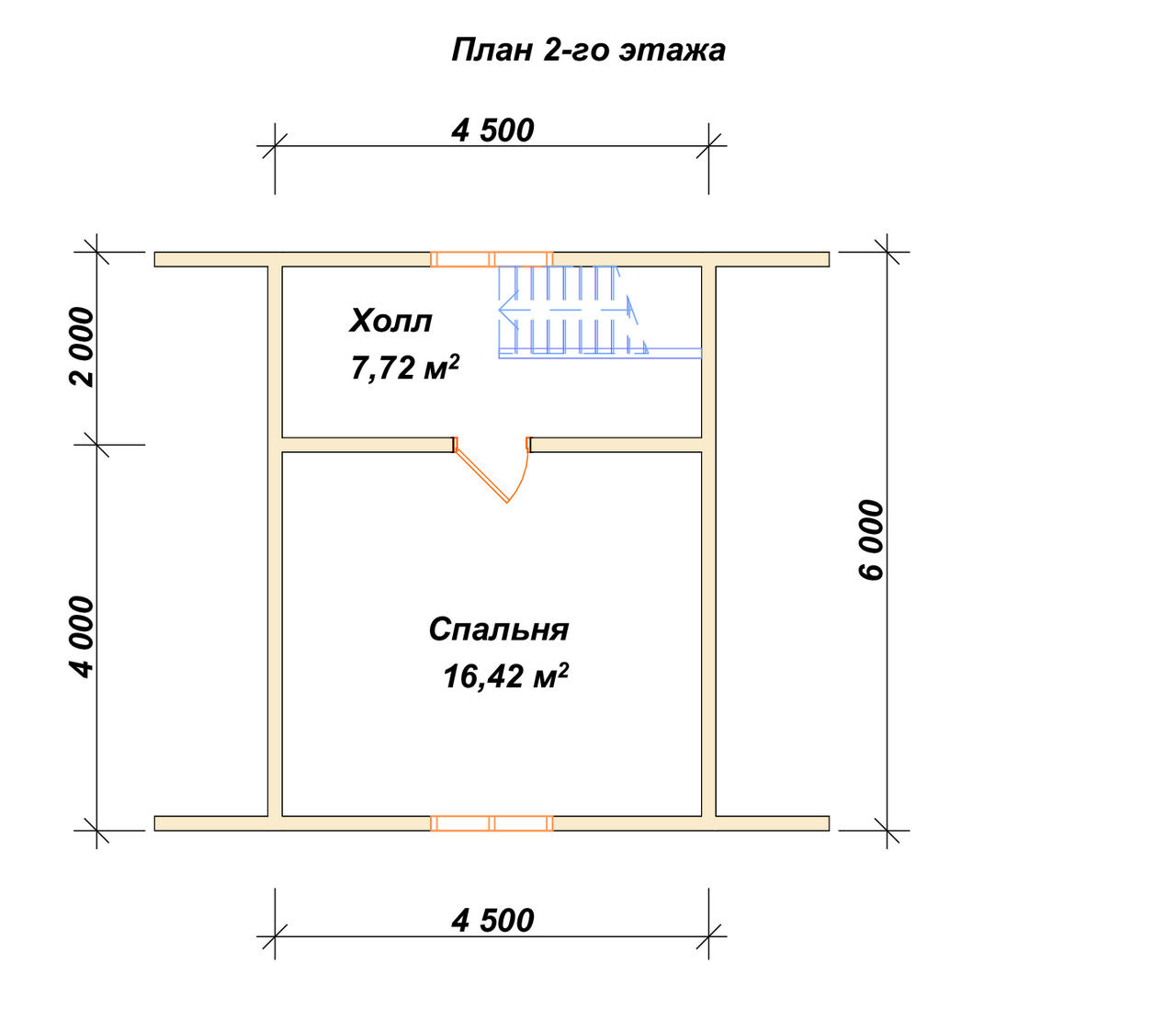
Планировки

Проект П092
Этажность
С мансардой
Площадь
55 м²
Размеры
6х6
Артикул
П092
Стоимость
от 2 640 000 ₽

Хотите внести изменения в проект?

Перепланировка, изменение площади, материалов — рассчитаем за один день

Входит в стоимость

Коробка и силовая часть

Основание, лаги, сруб и основные несущие элементы собраны в одном блоке, чтобы сразу видеть конструктивную базу проекта.

  • Обвязка основания Двойная, из нестроганого бруса 150×150 мм и бруса 100×150 мм на ребро естественной влажности.
  • Лаги пола 1-го этажа Доска 50×200 мм с шагом 590 мм, крепление на опору бруса.
  • Черновой пол Доска 20×100 мм естественной влажности.
  • Антисептирование Нижняя обвязка, черновые полы и лаги пропитываются антисептиком.
  • Внешние стены Профилированный брус 140×140 мм естественной влажности с компенсационными пропилами, льноджут между венцами.
  • Перегородки Профилированный брус 90×140 мм, хвойные породы, с двух сторон прямой.
  • Сборка сруба На деревянные берёзовые нагели для предотвращения горизонтального смещения.
  • Угловые соединения Тёплый угол для жёсткости конструкции и сохранения тепла.
  • Высота сруба От лаг пола до потолочных балок 2,6 м (±5 см), 19 рядов бруса.
Входит в стоимость

Кровля и проёмы

Во втором блоке собраны решения по крыше и стандартная схема подготовки оконных и дверных проёмов.

  • Крыша По проекту: двухскатная, ломаная или асимметричная, высота конька 1,7–3 м.
  • Стропила Доска 40×150 мм, шаг 590 мм.
  • Ветро-влагозащита Мембрана «Ондутис А-120 Смарт».
  • Контробрешётка Брусок 40×50 мм.
  • Обрешётка Доска 20×100 мм.
  • Фронтоны Мембрана «Ондутис А-100 Смарт», контррейка, имитация бруса 17×140 мм камерной сушки, вентиляционные решётки и дверь 0,7×0,9 м.
  • Покрытие Рубероид в базе, опционально металлочерепица, ондулин или мягкая кровля.
  • Окна Не устанавливаются, выполняется два ряда перевязки из профилированного бруса.
  • Межкомнатные двери Не устанавливаются, выполняется три ряда перевязки из бруса.
  • Входная дверь Не устанавливается, выполняется три ряда перевязки из бруса.
Входит в стоимость

Доставка и сборка

Отдельный блок для логистики и монтажа помогает быстро понять, что уже заложено в базовую цену проекта.

  • Доставка Бесплатно в радиусе 500 км от базы, далее 140 ₽/км за машину по предварительному онлайн-расчёту.
  • Сборка Материалы и работы на участке входят в стоимость проекта.
Рассчитывается отдельно

Опции и допрасчёт

Здесь собраны позиции, которые подбираются под участок, бюджет и желаемую финишную отделку.

  • Свайно-винтовой фундамент 5 200 ₽ за 1 сваю
  • Забивной ЖБ фундамент 5 500 ₽ за 1 сваю
  • Ленточный фундамент 19 000 ₽ за 1 м³

Точная стоимость зависит от геологии, перепада участка и выбранной схемы основания.

  • Ондулин от 350 ₽ за 1 м²
  • Профлист от 450 ₽ за 1 м²
  • Металлочерепица от 550 ₽ за 1 м²
  • Мягкая кровля от 800 ₽ за 1 м²

Стоимость зависит от площади, конфигурации крыши и выбранного узла монтажа.

Похожие проекты

Проект 11х12 метров, площадью 174,93 м2 Полутораэтажный

Проект П089

4 884 000 ₽

Площадь 175 м²
Размер 11х12
Этажи 1.5 этажа
Подробнее
Проект 8х10 метров, площадью 128 м2 Полутораэтажный

Проект П090

3 069 000 ₽

Площадь 128 м²
Размер 8х10
Этажи 1.5 этажа
Подробнее
Проект 7х7 метров, площадью 67 м2 С мансардой

Проект П091

2 409 000 ₽

Площадь 67 м²
Размер 7х7
Этажи Мансарда
Подробнее
Проект 6х8 метров, площадью 80 м2 С мансардой

Проект П093

2 079 000 ₽

Площадь 80 м²
Размер 6х8
Этажи Мансарда
Подробнее
Проект 8х8 метров, площадью 100,2 м2 Полутораэтажный

Проект П094

1 188 000 ₽

Площадь 100 м²
Размер 8х8
Этажи 1.5 этажа
Подробнее
Проект 7х9 метров, площадью 108 м2 Полутораэтажный

Проект П095

2 508 000 ₽

Площадь 108 м²
Размер 7х9
Этажи 1.5 этажа
Подробнее

Построенные дома

Отзывы

Отзыв
Отзыв
Новый отзыв заказчика
Новый отзыв заказчика
Отзыв Заказчика Rutube
Отзыв Заказчика Rutube
Отзыв заказчика
Отзыв заказчика

Построенные объекты на карте

Посмотрите, где мы уже построили дома и бани. Нажмите на маркер для подробностей.

Остались вопросы?