Брусовой дом 8х9

Брусовой дом 8х9
13.08.2024
Максим
ТСН ДНТ Металлург, городской округ Балашиха, МО

Строительство дома из бруса с антресолью и вторым светом

Характеристики строения под усадку:

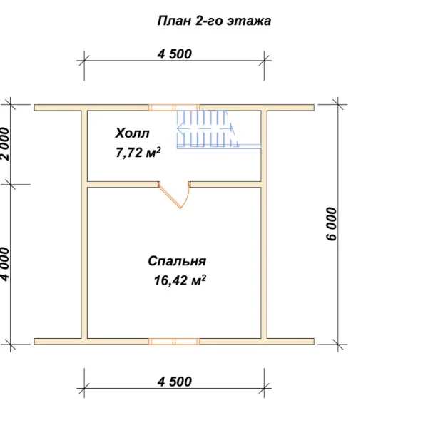
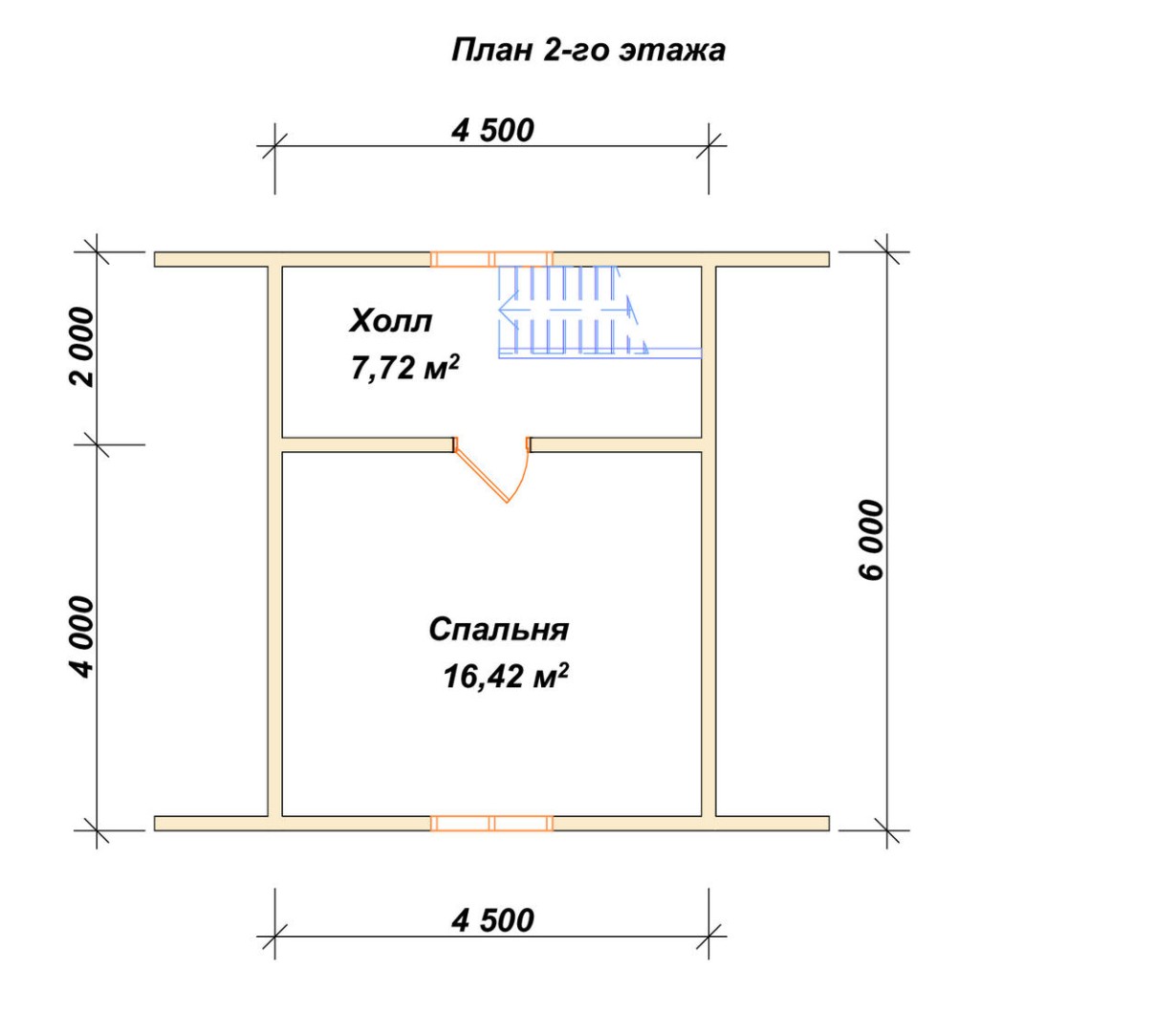
  • - Размер дома 8х10,5 метров с мансардой крышей;
  • - Фундамент Ж\Б сваи 4000х200х200 мм, обвязка 150х200;
  • - Наружные стены и капитальная стена из профилированного бруса сечением 145х145 мм камерной сушки;
  • - Перегородки 95х145 мм из профилированного бруса сечением 145х145 мм камерной сушки;
  • - Лаги пола 100х200 мм, потолочные лаги 100х150 мм, стропила 50х200 мм;
  • - Кровля металлочерепица 0,45 мм (ral 7024).


Подробный фоторепортаж постройки дома с планировками

Данный проект построен компанией sk-brigada.ru 


Остались вопросы?