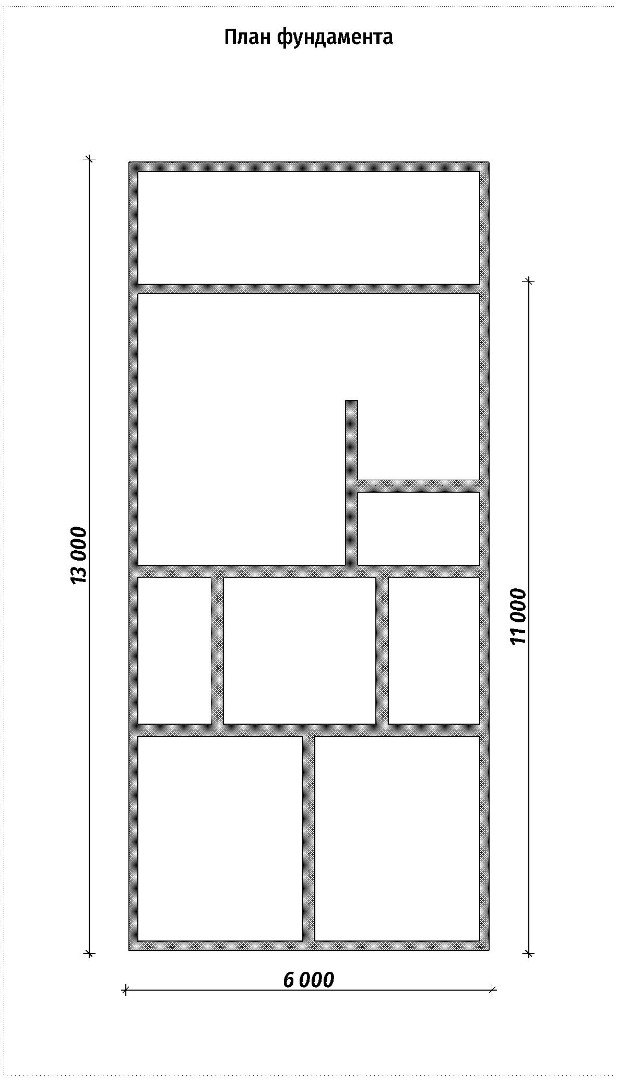
Фоторепортаж с места строительства дома в стиле барнхаус. На странице есть подробная информация о проекте и планировки дома. Так же указано место на карте. Данный проект построен компанией sk-brigada.ru
Пройдите тест и получите гарантированную скидку до 60 000 руб.
/
1Какой этажности должен быть ваш будущий дом?
2Выберите площадь вашего будущего дома
3Выберите размер вашего будущего дома:
4Выберите тип стенового комплекта:
5Выбор типа фундамента:
6Укажите цель использования будущего дома:
7Выберите тип кровельного покрытия:
8Когда планируете начать строительство?
Тест пройден! Для получения результатов оставьте ваш номер телефона.
Спасибо за потраченное время! Ваш подарок: скидка 60 000 р. на первый заказ!